Contemporary Family Home with Views, Views, Views

This executive 5-bedroom family home is a must see for those who appreciate quality. Every aspect of this home has been cleverly designed, from the functional and spacious layout, to the quality fixtures and finishes.

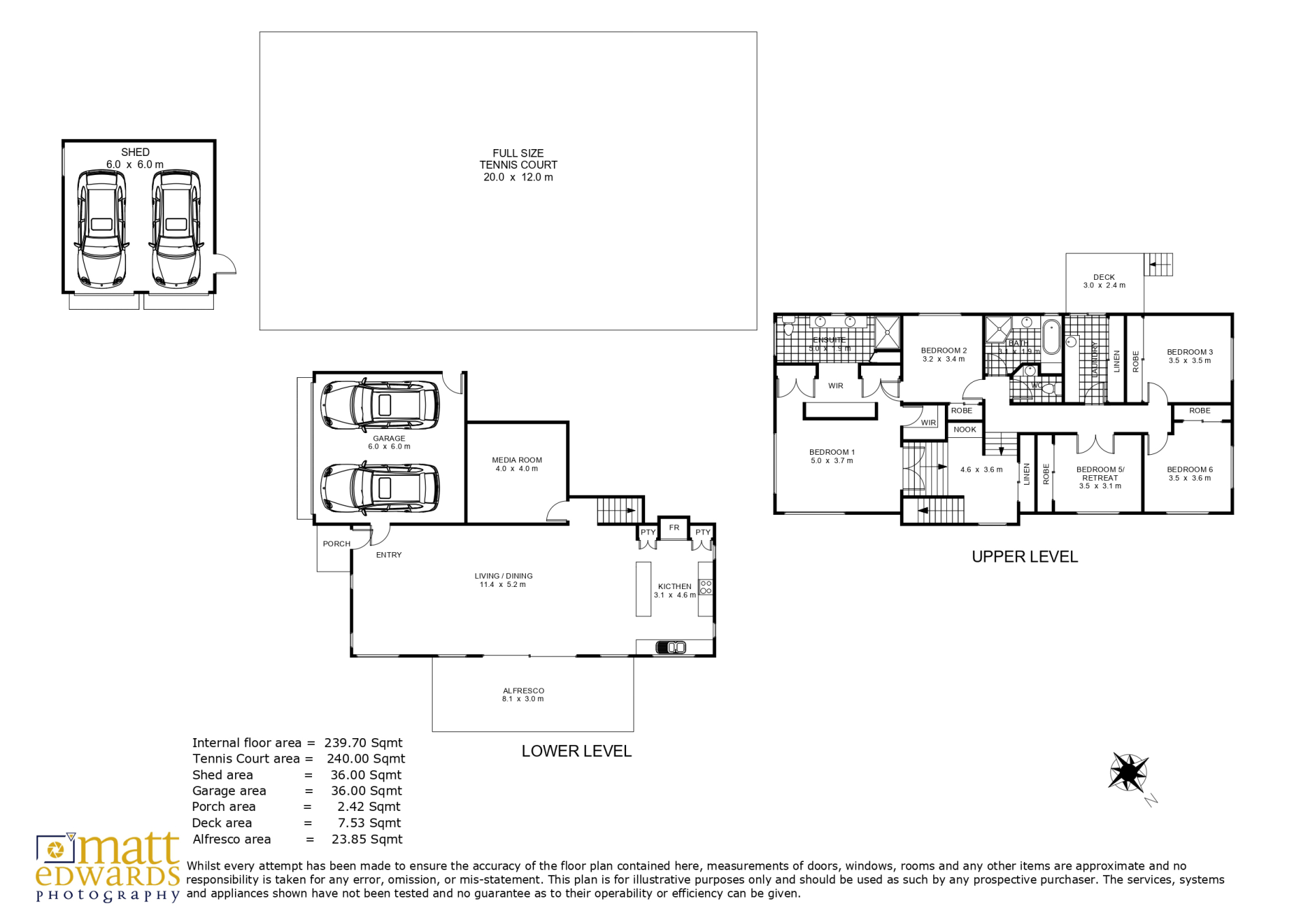
DOWNSTAIRS

The welcoming entrance leads into the large open-plan living/Dining/Kitchen area, which spans the entire bottom level. The space is large enough for a formal sitting area, lounge space, dining area and the impressive entertainer’s kitchen. Not to mention that 90% of the external walls are windows allowing for uninterrupted 180 degree + views to the East. The beautiful gloss 600 x 600mm tiles, shed ceiling and neutral tones gives this space a very stylish feel while you enjoy the stunning views from any vantage point.

You can’t help but to enjoy cooking in the well-appointed kitchen as you take in those magnificent views. With a double oven, ample storage space and impressive island bench which makes for the perfect prep area while engaging with the family or guests. The large sliding glass doors lead you out to the covered outdoor entertaining space, which can be enjoyed all-year round with its retractable blinds.

Also located on this level is large theatre room, equipped with Digital Projector, huge screen and in-built ceiling speakers.

UPSTAIRS

The Wows’ keep coming as you make your way upstairs. This mid-level section has a clever built in study nook and a large bank of built in cupboards allowing for ample storage. Turning left to the 3rd level takes you to the impressive main bedroom/parents’ retreat. This king-sized room also has sweeping views across the south-east, a massive amount of closet/clothes space with a walk-in-robe, his and hers built-in cupboards and a large shelf with hanging space. Not to be out done is the equally impressive ensuite, with his and hers vanities, his and hers double shower and separate toilet.

The remaining 4 large bedrooms which are located away from the parents’ area contain large built-ins, good sized windows for natural light, ceiling fans and ducted a/c vents. The 5th bedroom is currently used as an office and can be a 4th living area.

Also on the 3rd level is the main bathroom with single vanity, bathtub and shower and separate powder room, and the large laundry with access to the rear of the yard. The laundry has a massive bank of under bench and built-in storage.

OUTSIDE

The well maintained fully landscaped yards offer plenty of flat grassed area to enjoy, particularly at the front (East) of the home off the entertaining area. The full-sized tennis court at the rear of the property couples as a great playing area for the kids, being fully fenced it is marked as a tennis court with a basketball hoop and makes for a great cricket pitch.

Also, to the rear of the property is a powered 6m x 6m double garage for additional vehicle storage. Under the house is another additional storage area and houses the large rainwater tank.

This home is a must to inspect, as the views need to be experienced for themselves to be fully appreciated.

OTHER FEATURES

·         Ducted Aircon servicing both levels

·         Screened windows and doors

·         Additional air-con for the bottom level

·         Ceiling fans throughout

·         Large garage with internal access

·         Dimmable lights throughout

·         Fresh paint and window coverings

·         Views, Views, Views

School Catchments

Primary                Vale View State School (State)

Secondary           Centenary Heights State High (State)      

NBN                       Fibre to the Premise (FTTP) - Connected

Rates (approx.)

General                $1,150.00 (½ year approx.)

Water                   $350.00 (½ Year approx.) - connection

Year Built            2013

5 2 4 4,750 m2
Address 24 Manikato Dr, Hodgson Vale
Price SOLD for $1,175,000
Property Type Residential
Property ID 62
Category House
Land Area 4,750 m2

Agent Details

Bryan Gray photo

Bryan Gray

0414 568 936
View Profile