Quality Commercial Opportunity in a Growing Area

A great opportunity exists to own your own commercial space in the increasingly popular suburb of Rockville.

While currently a mixed commercial area, Rockville is well on the investor radar due to the soon-to- commence $1.3 Billion Toowoomba Hospital, combined with the established St Andrew’s hospital, this is certainly a significant Health and Allied Health hub.

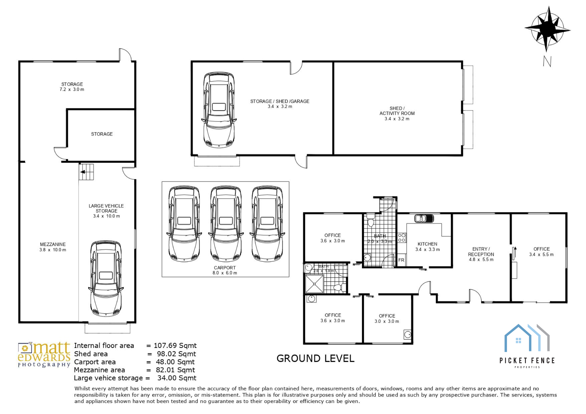
This main building contains:

·         4 offices (3 with single vanity)

·         Reception and waiting area

·         2 toilets (1 disabled compliant and 1 with shower)

·         Kitchen

·         A/C’s throughout

·         Security screened

·         Ramps (front and rear access)

The Sheds:

Shed 1 – 102sqm

·         Currently divided in half

·         Activity area

o   2 x roller doors

o   A/C

o   Fully lined wall and ceiling

o   Cover-crete floor

o   Powered with AV/IT set-up

·         Storage

o   Roller door access

o   Insulated

o   Powered

Shed 2 – 120sqm

·         High roller door entrance – 3.4m

·         Mezzanine level

·         Ample storage

·         Powered and plumbing

In Addition;

·         3 vehicle carport

·         Fully concreted yard with 2 street access

·         Fully fenced 1,002sqm block

·         Currently used for Health/Office/NDIS

·         Zoned Low Impact Industry

 

For further information or to arrange an inspection, call Bryan Gray on 0414 568 936 or email bryan@picketfenceproperties.com.au

7 1,002m2
Address 14 Makepeace St, Rockville
Price SOLD for $687,500
Property Type Commercial
Property ID 55
Commercial Listing Type Sale
Category Medical/Consulting, Offices
Land Area 1,002m2
Office Area 122m2
Total Area 122m2

Agent Details

Bryan Gray photo

Bryan Gray

0414 568 936
View Profile