Give Me Land Lots of Land...

 

Only 10 Minutes to Toowoomba

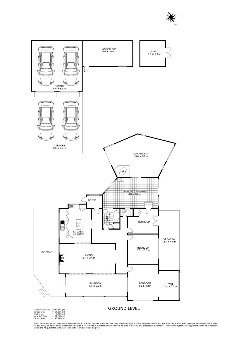
Looking for acreage living with 180-degree rural views? Well this three-bedroom chamfer home, + self-contained flat, is for you. Set on an impressive 6570m2 (1.6 acre – two titles) gently sloping block, surrounded by trees, low-maintenance gardens and views forever, allows you the option to move straight in or add your own touches.

The updated kitchen is well designed with ample storage and north-east views to catch that morning sun and cool breeze. The open-plan kitchen and living/dining space affords several options for living/dining layout with a large carpeted area currently the main lounge area and step-down space currently used for a dining area and small office, with security doors that lead to the east-side deck. The main living area has a wood-fire, ceiling fans and a window air-conditioner for year-round comfort and as with many parts of this home, significant north-facing views rural views.

The three bedrooms are generous in size, particularly the main room with a massive walk-in-robe that has potential for an ensuite. The bathroom contains a corner vanity and shower over bath and neighbours a separate toilet and there are several linen cupboards/storage options throughout the home.

A bonus of this home is the granny flat to the rear of the home. It is currently a bar/games room but has power and plumbing and currently a functioning corner spa bath. There is potential to make it a self-contained bedroom for teenagers or an income generating space. Between the granny flat and the main house is the covered laundry space that also has potential for another living space or year-round entertaining space.

Outside there is a deck either side of the home allowing you to enjoy the morning sun and a coffee to the east and a cold bevvy of your choosing on the western deck in the afternoon. There are five (5) tanks that service the home and ample car accommodation with a double lock-up garage and powered workshop and large carport to the front of the garage with space for caravan or trailer parking.

The large yard is accessible for additional or large vehicles and certainly ample room for the kids to enjoy.  Centrally located to Oakey to your west, Kingsthorpe to the North and Toowoomba to your East, this home is a must to inspect for those looking for large block living.

3 1 4 6,570 m2
Address 11265 Warrego Hwy, Kingsthorpe
Price SOLD for $370,000
Property Type Residential
Property ID 16
Category House
Land Area 6,570 m2

Agent Details

Bryan Gray photo

Bryan Gray

0414 568 936
View Profile